CASA COMERCIAL PARA LOCAÇÃO
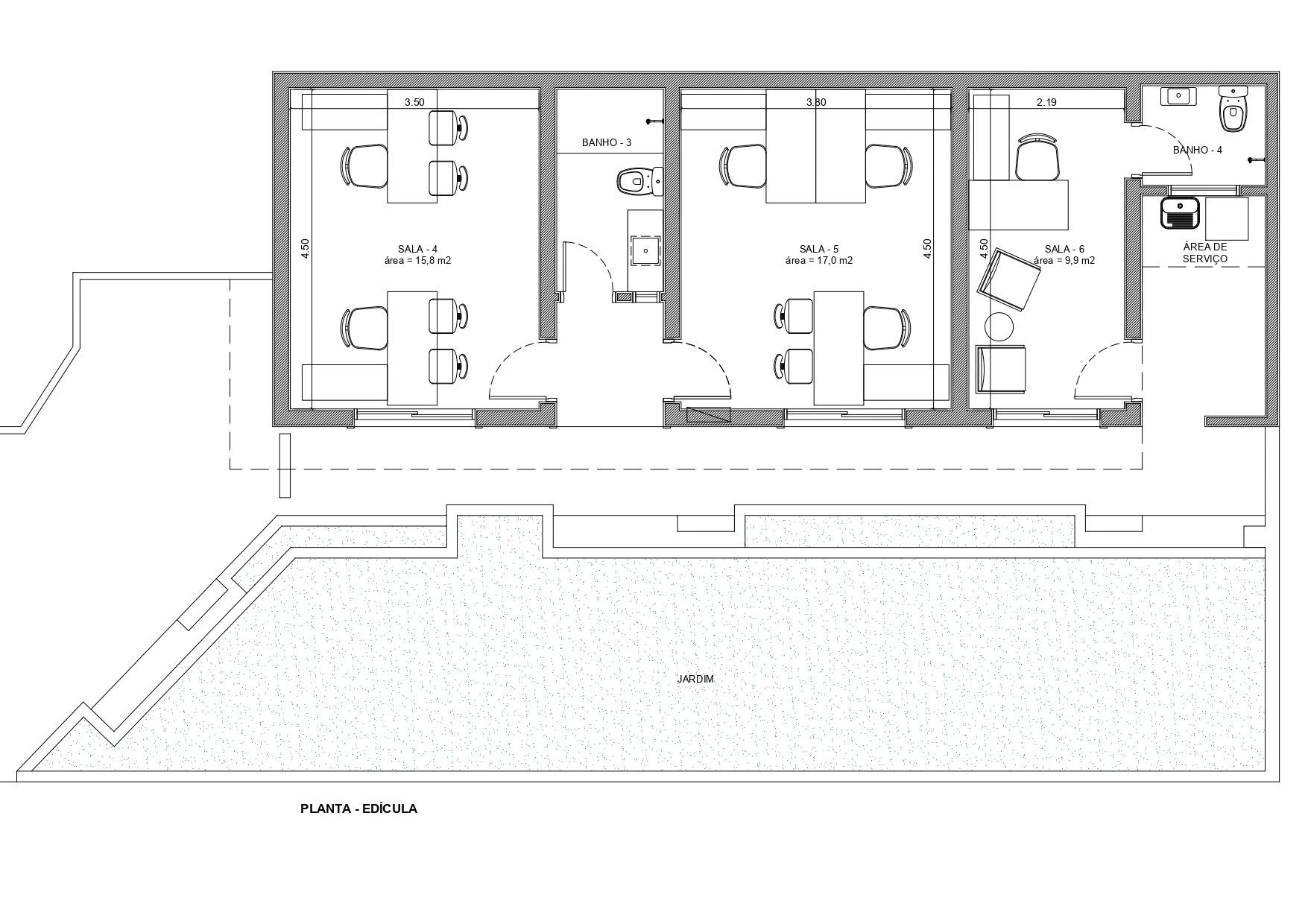
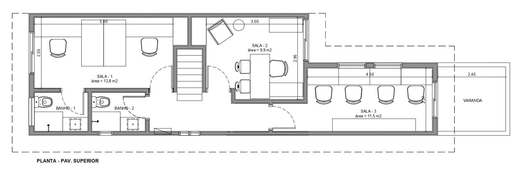
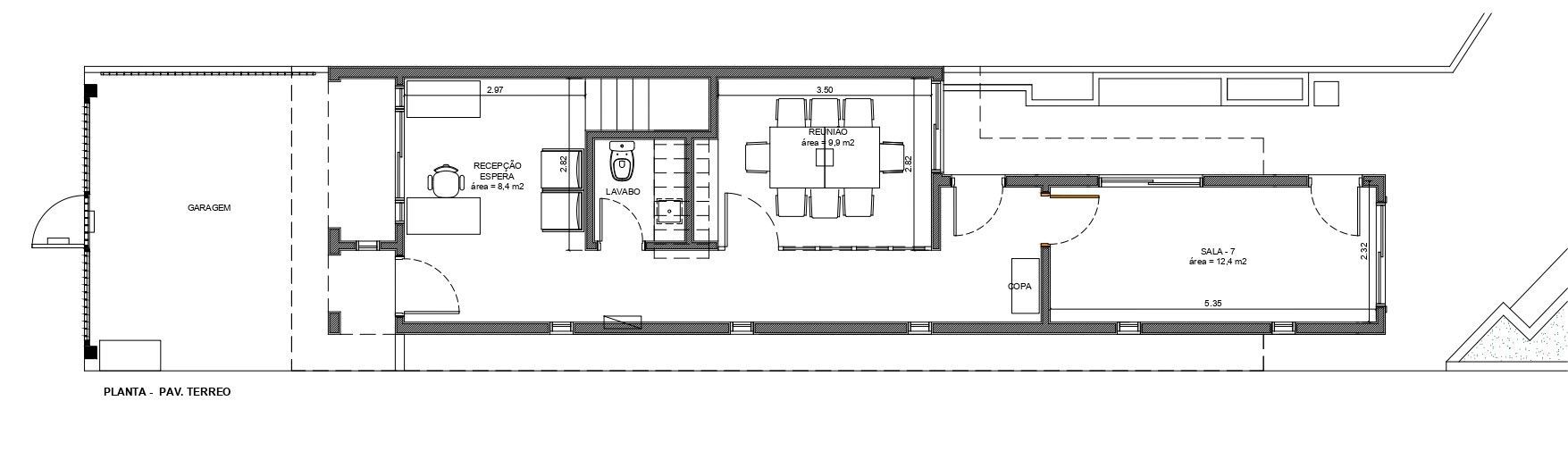
200 m², 7 salas, 5 banheiros, recém reformada, ideal para empresas, consultórios, clínica, escola ou escritórios que buscam um espaço funcional, bem distribuído e com ótima apresentação.
Características do imóvel:
✅ 7 salas amplas e bem iluminadas
✅ 5 banheiros, distribuídos para melhor uso dos ambientes
✅ Recepção acolhedora, pronta para receber seus clientes e pacientes
✅ Copa / Cozinha funcional para apoio interno
✅ Amplo jardim interno, trazendo conforto e bem estar ao ambiente de trabalho
✅ Imóvel recém reformado, com acabamentos modernos e ótima conservação
Diferenciais:
Espaço versátil para diversos tipos de negócio
Excelente ventilação e iluminação natural
Estrutura pronta para uso imediato
Instalações elétricas modernizadas, com infraestrutura de rede, circuito fechado de câmeras e pontos para ar condicionado
Localização Estratégica
Situada na Rua Joel Jorge de Melo, a apenas 600 metros do metrô Santa Cruz, no bairro da Vila Mariana, sua localização privilegiada facilita o deslocamento e possibilita conexão a uma das áreas mais vibrantes da cidade, repleta de opções de comércio e serviços, com diversos lançamentos de imóveis residenciais, próxima ao Shopping Santa Cruz, restaurantes, farmácias, bancos, mercados e escolas. Fácil acesso à Rua Domingos de Morais, Av. Jabaquara e Av. Dr. Ricardo Jafet.



























